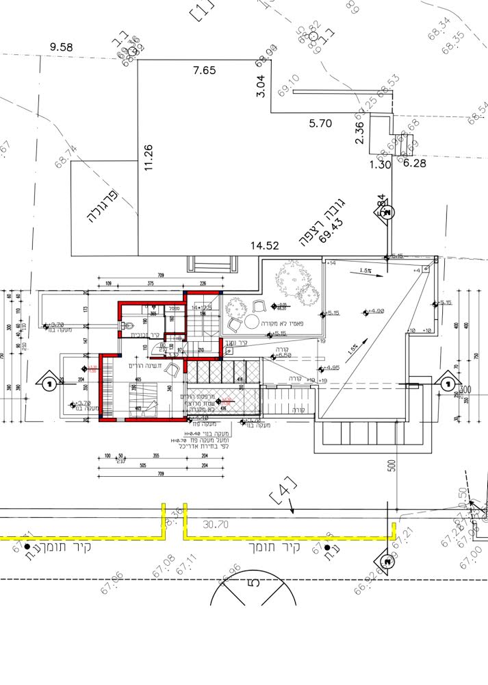
למכירה מגרש של נווה אשר בפרדס חנה.
מגרש של 400 מ"ר.
בעלות פרטית.
מוכן לבנייה, כולל תוכניות מהממות ושולמו אגרות בנייה
מיקום גבוה בשכונה.

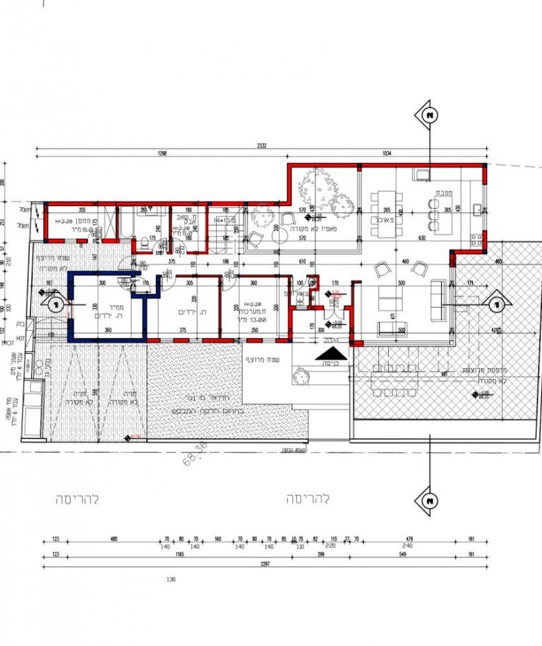
למכירה מגרש של נווה אשר בפרדס חנה.
מגרש של 400 מ"ר.
בעלות פרטית.
מוכן לבנייה, כולל תוכניות מהממות ושולמו אגרות בנייה
מיקום גבוה בשכונה.